Menton / Les Hauts Jardins
- alk. 262 000 €
- alk. 262 000 €
Yleiskatsaus
- Uudiskohteet
- 1-2
- 42-73 m²
Yksityiskohdat
-
REF HJ-1708
-
Hinta alk. 262 000 €
-
Koko 42-73 m²
-
Makuuhuoneet 1-2
-
Huoneet 2-3
-
Asuntotyyppi Uudiskohteet
-
Parvekkeen koko 10-24 m2
-
Ekstrat Merinäkymä, Parkkipaikka, Parveke/Terassi/Piha
Kohteen kuvaus
– Rauhallinen asuinkukkula lähellä keskustan palveluita
– Rinnetontin ansiosta myös merinäkymiä
– Arvio valmistumisesta: kesä 2026
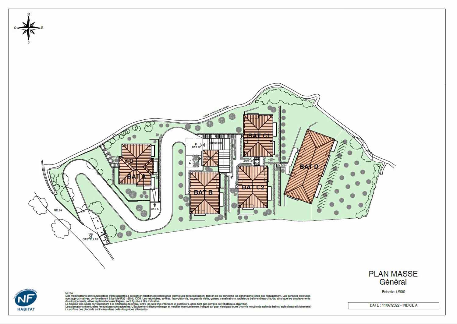
Mentonin rauhalliselle ja suositulle kukkulalle on rinnetontille rakenteilla uudiskohde Les Hauts Jardins. Täältä on n. 3,5 km:n ja 10 minuutin helppo ajomatka ihastuttavaan Mentonin ydinkeskustaan, jossa ravintolat, kahvilat, kaupat, palvelut ja ranta odottavat. Italian rajalle ajaa n. 15, Monacoon 30 ja Nizzaan n. 45 minuuttia. Lyhyen kävelymatkan päässä on bussipysäkki, josta bussi kulkee Mentonin keskustaan ja rautatieasemalle. Taloyhtiön lähellä kulkee patikointireittejä.
Les Hauts Jardins on 1-kerroksisia (suomalaisittain 2-kerroksista) rakennuksia käsittävä kokonaisuus, johon valmistuu 2-4 huoneen asuntoja. Rinnetontin ansiosta osasta asuntoja on kaunis merinäkymä. Kaikilla asunnoilla on 1-2 parkkipaikkaa, jotka sijaitsevat rakennusten alla. Joillekin asunnoille on varattu kellarivarasto.
Talot rakennetaan tämän päivän normeja noudattaen ja energiatehokkuuteen on panostettu. Asukkaat saavat valita pintamateriaalit rakennuttajan laadukkaasta valikoimasta. Ikkunaluukut ovat sähköiset. Asunnoista on videoyhteys alaovelle. Kylpyhuoneet varustetaan valmiiksi, mutta keittiön koneet ja kalusteet jokainen ostaa erikseen toivomustensa mukaisena.
Jäljellä olevat asunnot
| Kerros | Asunto | Asuinala m² | Parveke / piha m² | Ilmansuunta | Merinäkymä | Hinta € *) |
| RDC | 2h + k | 41,80 | 10 | pohjoinen | – | 262 000 |
| RDC | 2h + k | 41,80 | 10 | etelä | – | 274 000 |
| RDJ | 2h + k | 41,70 | 24 | etelä | – | 284 000 |
| 1. | 2h + k | 39,90 | 10 | itä | kyllä | 298 000 |
| RDC | 3h + k | 60,60 | 12 | itä + etelä | kyllä | 399 000 |
| RDC | 3h + k | 60,60 | 12 | itä + pohjoinen | kyllä | 399 000 |
| RDC | 3h + k | 65,90 | 12 | itä + länsi | kyllä | 418 000 |
| RDC | 3h + k | 65,90 | 12 | koillinen + luode | kyllä | 418 000 |
| RDC | 3h + k | 65,90 | 12 | itä + länsi | kyllä | 418 000 |
| 1. | 3h + k | 73,00 | 10 | koillinen + luode | kyllä | 440 000 |
*) Huom! Hintaan kuuluu 1-2 parkkipaikkaa maan alla ja 3-4h asunnoille kellarivarasto. Keittiön koneet ja kalusteet ostetaan erikseen.
RDJ = “rez-de-jardin” = puutarhakerros, RDC = “rez-de-chaussée” = sisääntulokerros, joka on puutarhakerroksen yläpuolinen kerros, 1. kerros = kuten suomalainen 2. kerros.
Asunnon sijainti on suuntaa-antava
Avaa Google -kartassa
- Habisol








