Nizza Riquier 2 x 2h yht. 80 m2 terassi
- 658 000€
- 658 000€
Yleiskatsaus
- Huoneistot
- 2
- 2
- 80 m²
Ominaisuudet
- Arvostettu asuinalue
- Arvostettu taloyhtiö
- Autohissi
- Avoimet näkymät
- Erinomainen kunto
- Hissi
- Hyvät julkiset kulkuyhteydet
- Ilmansuunta: lounas
- Ilmansuunta: luode
- Ilmastointi
- Kaupunkinäkymät
- Kävelymatka palveluihin
- Kävelymatka rantaan
- Läpitalon asunto
- Mahdollista ostaa parkkipaikka
- Parkkipaikka maan alla
- Satama lähellä
- Ylin kerros
Yksityiskohdat
-
REF RIQ-210
-
Hinta 658 000€
-
Koko 80 m²
-
Makuuhuoneet 2
-
Huoneet 4
-
Kylpyhuoneet 2
-
Rakennusvuosi 2022
-
Asuntotyyppi Huoneistot
-
Parvekkeen koko 10 + 2,5 m2
-
Kiinteistövero 2 307 €/v
-
Energialuokka C
-
Yhtiövastike 333 €/kk
-
Ekstrat Parkkipaikka, Parveke/Terassi/Piha
Kohteen kuvaus
Nizzan sataman takaisella Riquierin trendikkäällä alueella, vuonna 2022 valmistuneen taloyhtiön ylimmässä kerroksessa kaksi vierekkäistä kaksiota, joita yhdistää eteistila.
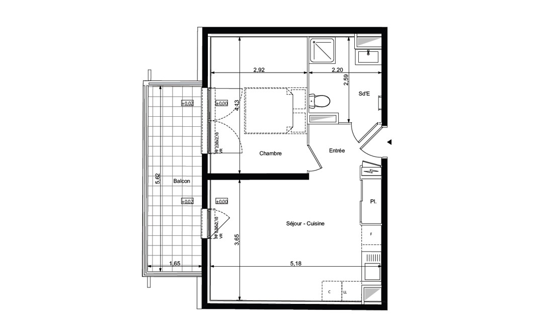
Toisessa kaksiossa (39 m2) on eteinen, olohuone avokeittiöllä, makuuhuone ja kylpyhuone, jossa wc. Olohuoneesta ja makuuhuoneesta on käynti lounaaseen suuntautuvalle n. 10 m2:n terassille, josta avoimet näkymät sisäpihan puolelle ja pilkahdus vanhan kaupungin Château-kukkulaa.
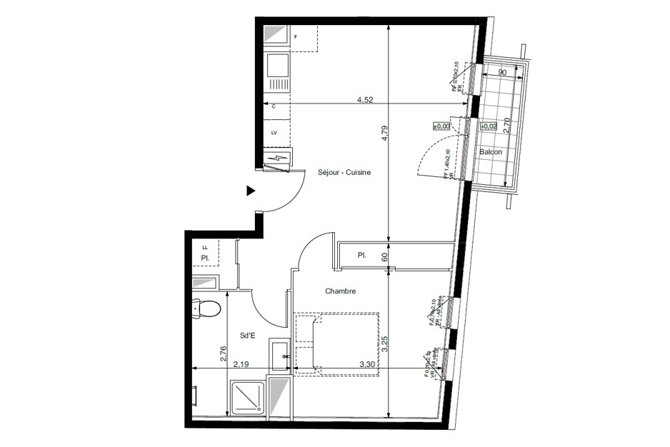
Toisessa kaksiossa (41 m2) on eteinen, olohuone avokeittiöllä, erillinen makuuhuone, kylpyhuone ja jossa wc. Olohuoneesta on käynti luoteeseen suuntautuvalle n. 2,5 m2:n parvekkeelle, josta näkymä kadulle.
Hintaan kuuluu autopaikka maanalaisesta hallista ja toinen autopaikka hallista on mahdollista ostaa erikseen.
Asuntoja voi mukavasti elää molempia samanaikaisesti pitäen väliovet auki tai ne voi pitää täysin erillään sulkemalla ovet.
Erinomainen sijainti, jossa kaikki palvelut sijaitsevat jalkojen juuressa – esim. Rivieran parhaaksi äänestetty leipäkauppa vain 100 metrin päässä! Lentokentälle vievän ratikan pysäkille n. 550 metriä.
Asunnon sijainti on suuntaa-antava
Avaa Google -kartassa
- Habisol




















