Nizzan länsirinteet 3h 90 m2 terassi
- 830 000€
- 830 000€
Yleiskatsaus
- Huoneistot
- 2
- 2
- 90 m²
Ominaisuudet
- Arvostettu asuinalue
- Arvostettu taloyhtiö
- Autotalli
- Erinomainen kunto
- Hissi
- Hyvät julkiset kulkuyhteydet
- Ilmansuunta: lounas
- Ilmastointi
- Kauniit näkymät
- Kerros 2 (suom. 3. krs)
- Läpitalon asunto
- Mahdollista ostaa autotalli
- Palvelut lähellä
- Panoraamanäkymät merelle
- Ranta lähellä
- Uima-allas
- Voidaan myydä kalustettuna
- Ylin kerros
Yksityiskohdat
-
REF FBB-118
-
Hinta 830 000€
-
Koko 90 m²
-
Makuuhuoneet 2
-
Huoneet 3
-
Kylpyhuoneet 2
-
Asuntotyyppi Huoneistot
-
Parvekkeen koko 20 + 12 m2
-
Kiinteistövero 2 705 €/v
-
Energialuokka B
-
Yhtiövastike 381 €/kk
-
Ekstrat Merinäkymä, Uima-allas, Parkkipaikka, Parveke/Terassi/Piha
Kohteen kuvaus
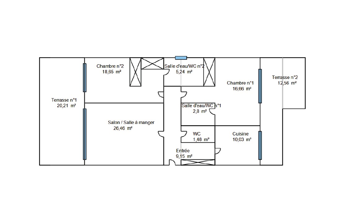
Nizzan länsirinteillä, korkeatasoisen taloyhtiön ylimmässä kerroksessa sijaitseva läpitalon asunto, jonka tilavilta terasseilta aukeaa kauniit näkymät, toiselta merelle.
Asunnossa on eteinen, tilava olohuone, erillinen keittiö, kaksi makuuhuonetta, kaksi kylpyhuonetta, joissa wc:t sekä erillinen wc. Olohuoneesta ja toisesta makuuhuoneesta on käynti 20 m2:n lounaaseen suuntautuvalle terassille, jolta aukeaa panoraamanäkymät merelle. Keittiöstä ja toisesta makuuhuoneesta on käynti 12 m2:n terassille koilliseen, jolta aukeaa kauniit näkymät kukkuloille. Asuntoon kuuluu autotalli ja kellarivarasto. Mahdollista ostaa toinen autotalli lisähintaan 35 000 €. Asunto myydään mieluusti kalustettuna. Taloyhtiöllä on uima-allas.
Haluttu sijainti n. 1 km:n päässä rannasta ja raitiovaunusta, jolla helppo kulku Nizzan keskustaan tai lentokentälle.
Asunnon sijainti on suuntaa-antava
Avaa Google -kartassa
- Habisol
















